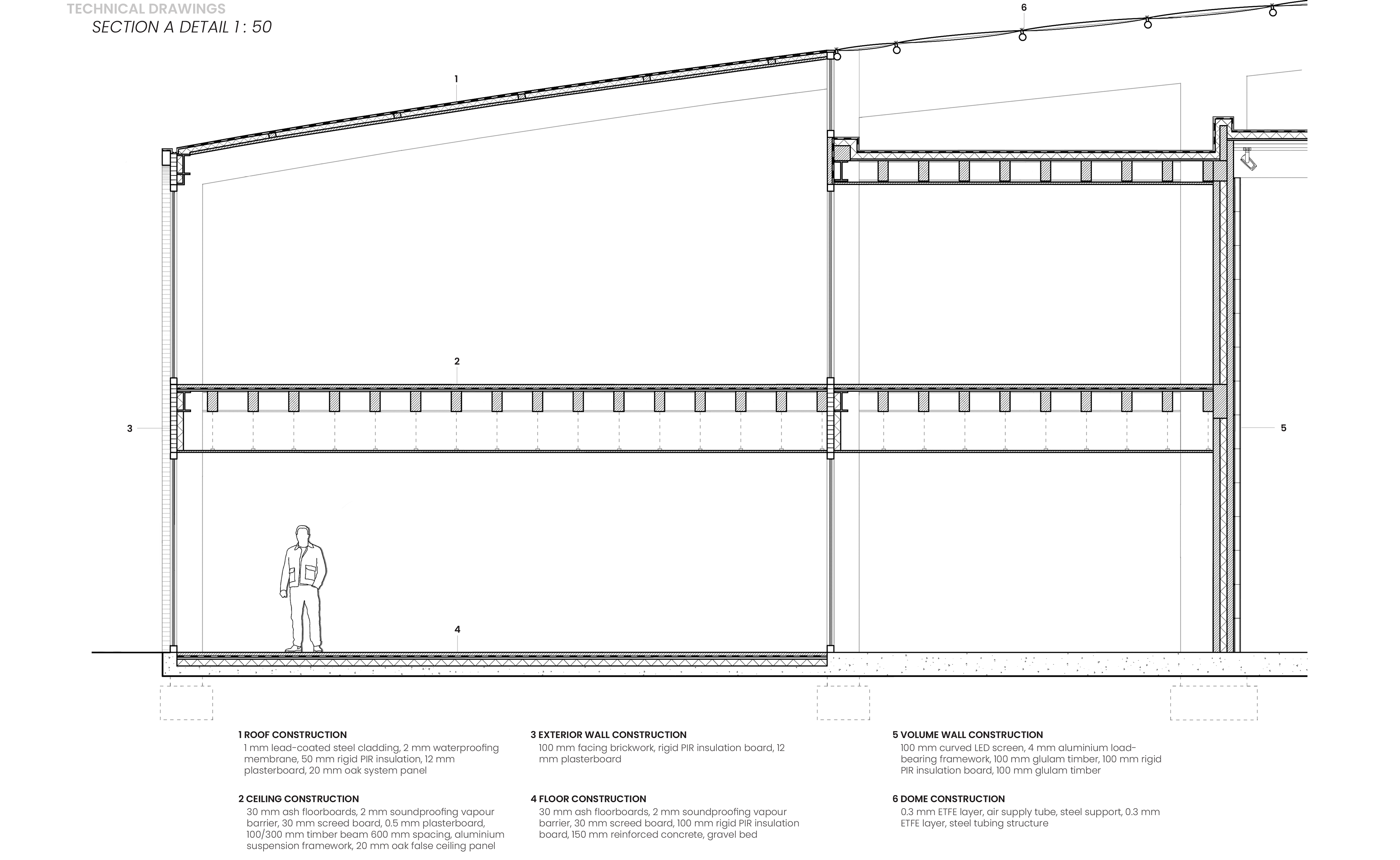
‘Key Frames’ is a contemporary cinematheque and library in Liverpool that celebrates the city’s overlooked role in cinema while engaging the underrepresented youth of Vauxhall. Centred around a cutting-edge Volume set, the building’s cyclical layout guides visitors through every stage of filmmaking, from concept to distribution in an independent cinema. Thick timber beams evoke the provisional frameworks of film sets, while the industrial context of Stanley Dock is reimagined as cinematic backdrop. Blurring the boundaries between library and cinematheque, the project preserves film scripts, archives, and footage as educational resources for all.
Back to Top